Home
About Us
Residential Drafting
Mechanical Drafting
Shop Drawings
3D Modelling
Contact Us
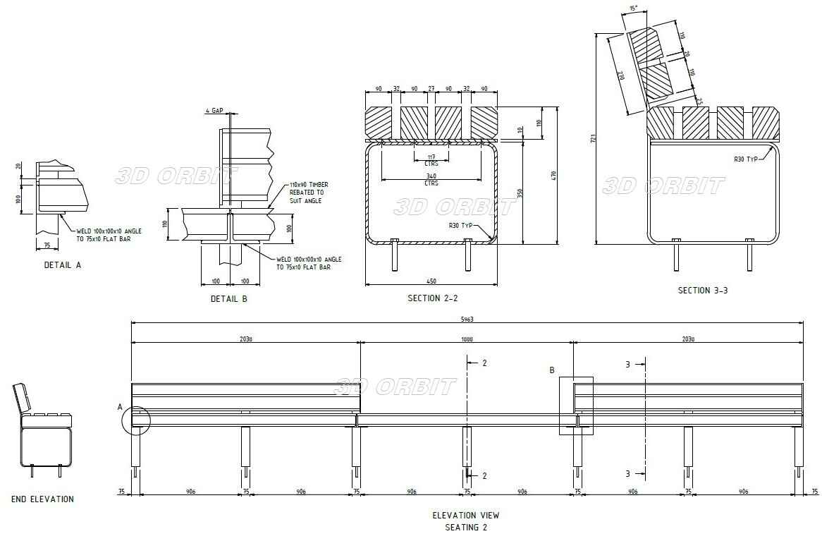
Shop Drawing Portfolio
error:
Content is protected !!